空港
広大な北海道における
地域間交通の拠点として、
空港は重要な交通基盤と
なっています。
私たちは、航空機の安全性や
定時性を確保するため、
空港土木施設に関する
点検・診断・評価・設計に関する
コンサルタント業務を実施しております。
空港整備事業における、滑走路・誘導路・エプロンなど空港土木施設の点検調査・舗装評価・改良計画・材料試験・実施設計・施工計画・委員会運営補助に渡る一連の業務経験を基に、積雪寒冷地の空港土木施設の更新に関する各種検討と提案を実施しております。
主な業務内容
空港土木施設点検評価
滑走路・誘導路・エプロン等の空港土木施設について、現地点検調査および室内試験を実施し、
空港土木施設点検評価技師による評価を行います。
劣化原因把握
各種空港土木施設について、点検評価結果に基づき劣化原因を推定し、その対策を実施設計に反映させます。
実施設計
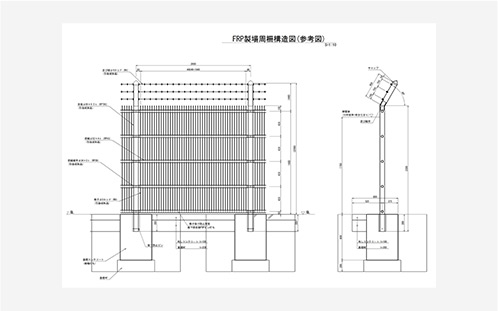
滑走路・誘導路・エプロン等の舗装施設、FRP製場周柵などの空港土木施設について、設計を行います。
施工計画検討
施工計画全般の立案を行います。エプロン改良工事においては、
工事中のクローズエリアの設定や航空機のタキシング方法、
駐機位置の変更等、航空機の運用に関する提案を行います。
また、夜間工事の騒音および振動等の環境調査も実施しています。
委員会運営補助
技術検討委員会の設置・運営補助を通して、空港舗装に関する有識者の意見や情報を幅広く収集し、
土木施設に関する最適な修繕方法を提案いたします。











